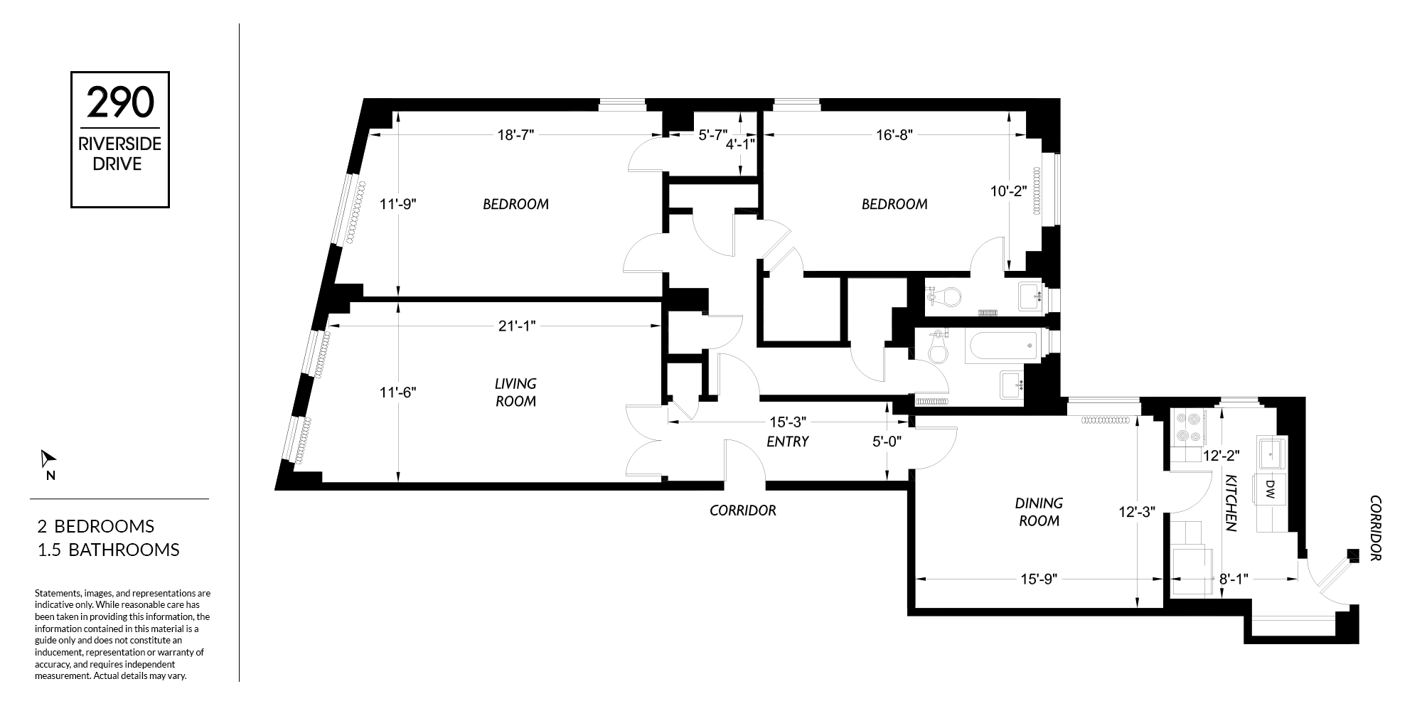
290Riverside-Drive – 2 BR – 1.5 Bath